fbpx


LOADING

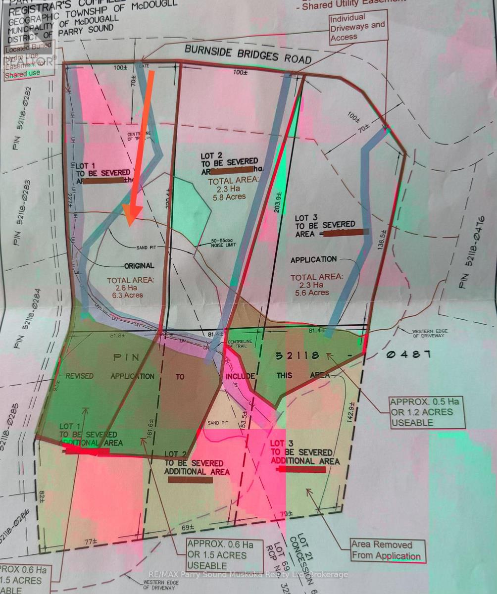
Lot 1 Burnside Bridge Road Mcdougall, Ontario P2A 2W9

Acreage

$174,900

Stunning 6.3 acre building lot with 320 feet frontage on the outskirts of Parry Sound in the Township of McDougall. Hydro at the lot line. Located in one of the most desirable areas for residential rural homes Close to Mill lake/Mountain Basin/Portage Lake. A year-round maintained municipal road. A full lush forest for great privacy. Hydro at the road.Just minutes away from the town of Parry Sound with schools, College, shopping, theatre of the arts and hospital. Enjoy all season activities in the area. Go boating at many area lakes and Georgian Bay. ATVing, snowmobiling, hiking, ice fishing. Live rural yet be close to all necessities. Live work and play in cottage country. Click on the media arrow for video. Hst in addition to price.Taxes have not been assessed at the time of listing. This is a newly severed lot. (id:32152)

Property Details

MLS® Number X12974500
Property Type Vacant Land
Community Name McDougall

Building

Land

Acreage Yes
Size Depth 1049 Ft
Size Frontage 328 Ft
Size Irregular 328 X 1049 Ft
Size Total Text 328 X 1049 Ft|5 - 9.99 Acres

Utilities

Electricity Available

https://www.realtor.ca/real-estate/29577350/lot-1-burnside-bridge-road-mcdougall-mcdougall

Interested?

Contact us for more information


Your Favourites

 

No Favourites Found